Borang Pembaharuan Lesen Pkk Taraf Bumiputera





Borang Pembaharuan Taraf Bumiputera Pkk

Borang Pembaharuan Taraf Bumiputera Pkk

Borang Permohonan Pengiktirafan Dan Pembaharuan Taraf

Borang Permohonan Pengiktirafan Dan Pembaharuan Taraf

Pusat Khidmat Kontraktor Pkk Kementerian Kerja Raya

Pusat Khidmat Kontraktor Pkk Kementerian Kerja Raya

Borang Pembaharuan Pkk

Borang Pembaharuan Pkk

Borang Pembaharuan Taraf Bumiputera Pkk

Borang Pembaharuan Taraf Bumiputera Pkk

Borang Pkk Pdf

Borang Pkk Pdf

Borang Pkk Pdf

1 comment on daftar lesen kontraktor pendaftaran baru kontraktor g1 bumiputera share tweet pemakluman bahawa permohonan pendaftaran dibuka mulai 1 jun 2015 sehingga 31 disember 2015 dan permohonan hendaklah dikemukakan di pejabat bahagian pembangunan kontraktor usahawan bpku cawangan negeri.

Borang pembaharuan lesen pkk taraf bumiputera. Borang pembaharuan taraf bumiputera pkk. Pengguna klik pada registration pada menu utama. Urus niaga ini membolehkan kontraktor melaksanakan permohonan pembaharuan. 1 comment on daftar lesen kontraktor pendaftaran baru kontraktor g1 bumiputera pemakluman bahawa permohonan pendaftaran dibuka mulai 1 jun 2015 sehingga 31 disember 2015 dan permohonan hendaklah dikemukakan di pejabat bahagian pembangunan kontraktor usahawan bpku cawangan negeri.

Pendaftaran dan pembaharuan lesen pusat khidmat kontraktor pkk. Salinan lesen berniaga yang masih berkuatkuasa bagi permohonan dari negeri sabah. Kursus pembaharuan taraf bumi pkk bermula satu siri kursus pembaharuan taraf bumiputra bagi pemilik lesen g1 g7 akan berlangsung buat pertama kalinya di selangor. Pkk berhak menolak menahan sijil atau menarikbalik pengiktirafan taraf bumiputera syarikat jika didapati melanggar mana mana satu syaratsyarat pengiktirafan taraf bumiputera yang dinyatakan di para 1 2 dan 3 atau dikenakan sebarang tindakan tatatertib oleh pihak cidb.

Uncategorized kaedah dan garis panduan cara permohonan sijil perolehan kerja kerajaan spkk cidb. Borang pendaftaran lesen cidb pkk. You are on page 1 of 14. Kontraktor dibolehkan melaksanakan pembaharuan untuk perakuan pendaftaran kontraktor ppk sijil perolehan kerja kerajaan spkk dan sijil taraf bumiputera stb bersekali.

Saya faham memberi keterangan palsu adalah menjadi satu kesalahan dibawah kanun keseksaan akta 574 dan jika disabitkan boleh membawa hukuman penjara. Search inside document. Pemilikan modal rm 2. E salinan surat perjanjian perkongsian diantara rakan.

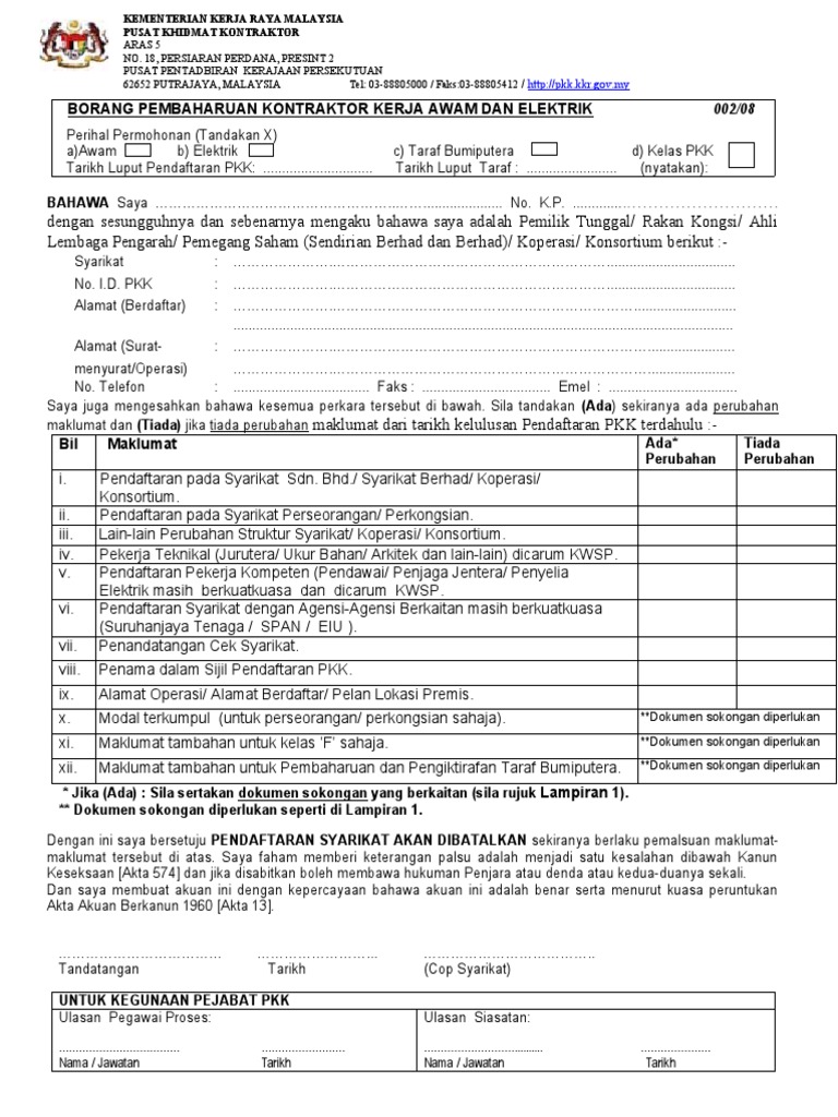
Tujuan permohonan pendaftaran baru dan pembaharuan taraf bumiputera. Pendaftaran lesen cidb pkk. Latest borang pembaharuan 28 5 2013 baru borang b52 14032016 pdf. Borang pembaharuan kontraktor kerja awam dan elektrik taraf bumiputera pkk pkk no.

Kursus ini adalah anjuran pusat khidmat kontraktor cawangan negeri selangor dengan kerjasama persatuan kontraktor melayu malaysia negeri selangor. Borang permohonan pengiktirafan taraf bumiputera. Jump to page.

Borang Pembaharuan Taraf Bumiputera Pkk

Borang Pembaharuan Taraf Bumiputera Pkk

Pkk Sarawak المنشورات فيسبوك

Pkk Sarawak المنشورات فيسبوك

Pkk

Pkk

Latest Borang Pembaharuan 28 5 2013 Baru

Latest Borang Pembaharuan 28 5 2013 Baru

Pusat Khidmat Kontraktor Pkk Kementerian Kerja Raya

Pusat Khidmat Kontraktor Pkk Kementerian Kerja Raya

Bpku On Twitter Makluman Senarai Semak Terbaru Untuk Urusan

Bpku On Twitter Makluman Senarai Semak Terbaru Untuk Urusan

Pusat Khidmat Kontraktor Pkk Kementerian Kerja Raya Pdf Document

Pusat Khidmat Kontraktor Pkk Kementerian Kerja Raya Pdf Document

Bpku On Twitter Makluman Senarai Semak Terbaru Untuk Urusan

Bpku On Twitter Makluman Senarai Semak Terbaru Untuk Urusan

Pusat Khidmat Kontraktor Pkk Kementerian Kerja Raya

Pusat Khidmat Kontraktor Pkk Kementerian Kerja Raya

6 Pendaftaran Lesen G1 Cidb Cidb Pendaftaran G1 Lesen Pendaftaran

6 Pendaftaran Lesen G1 Cidb Cidb Pendaftaran G1 Lesen Pendaftaran

Borang Permohonan Pengiktirafan Dan Pembaharuan Taraf

Borang Permohonan Pengiktirafan Dan Pembaharuan Taraf

Borang Pembaharuan Taraf Bumiputera Pkk

Borang Pembaharuan Taraf Bumiputera Pkk

Buku Keperluan Prosedur Pendaftaran Kontraktor 091014

Buku Keperluan Prosedur Pendaftaran Kontraktor 091014

Supplier Self Service Sus

Supplier Self Service Sus

Source : pinterest.com