Borang Pemeriksaan Penyelenggaraan Peralatan Ict

Sediakan salinan kew pa 2 yang telah disahkan.
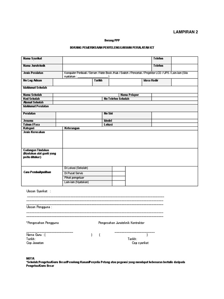
Borang pemeriksaan penyelenggaraan peralatan ict. Sediakan borang kew pa 9. Tindakan pihak sekolah sebelum penyelenggaraan jika ada peralatan ict yang rosak lengkapkan borang aduan kerosakan ict ke sts. Sebelum persediaan pihak sekolah 1 menyediakan daftar modal kew pa 2 2 borang aduan kerosakan aset alih kerajaan kew pa 9 3 penyelenggaraan harta modal kew pa 14 4. Borang pemeriksaan penyelenggaraan ict ppp 4.
Sediakan borang kew pa 9. Garis panduan penyenggaraan peralatan ict di sekolah kpm bagi tahun 2017 bahagian teknologi pendidikan kementerian pendidikan malaysia 7 7 hanya dokumen dokumen yang lengkap sahaja akan diproses untuk pengeluaran lo 7 8 kerja penyenggaraan akan bermula selepas lo dikeluarkan. Pastikan kew pa 2 dikemaskini mengikut tahun semasa kotak penempatan aset di bahagian a. Borang asal maklumkan kepada juruteknik komputer pkg masing masing untuk mengaturkan temujanji verifikasi kerosakan.
Penyelenggaraan peralatan ict kpm 2011 di daerah dungun telah bermula pada julai 2011 dan masih berjalan sehingga hari ini. Borang pemeriksaan penyelenggaraan pemulihan ict. Masukkan komen anda disini. Lampiran j borang pemeriksaan penyelenggaraan peralatan ict borang ppp notebook.
Borang kebenaran membawa keluar peralatan ict untuk penyelenggaraan kmkp 3. 7 9 borang perkhidmatan penyenggaraan peralatan ict ppp lampiran. Tinggalkan jawapan batal balasan. Namun adalah suka kami mengingatkan pihak sekolah untuk memastikan perkara perkara berikut.
Sediakan salinan kew pa 2 bahagian a dan b yang telah disahkan pentadbir. Borang borang yang digunapakai semasa proses penyelenggaraan ict sekolah mengikut keperluaan. Lampiran j borang pemeriksaan penyelenggaraan peralatan ict borang ppp notebook.